Top.Mail.Ru

улица Раменки, д. 11, к. 3

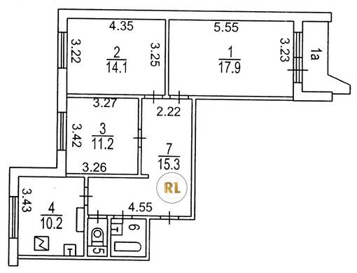
База каталог, Кол-во помещений: 270, П-44, Москва, Раменки, Площадь парковки: 0, Пассажирский лифт: 4, От метро: 820, Западный, нет, Наименьшее кол-во этажей: 17, Наибольшее кол-во этажей: 17, Мичуринский проспект, Кол-во подъездов: 4, Год ввода в эксплуатацию: 1985, Кол-во нежилых помещений: 0, 3-комн, Кол-во жилых помещений: 270, дом 11, корпус 3, нет, да, да, да, да, да, Грузовых лифтов: 4, Год постройки: 1985, улица Раменки, 37.495581, 55.690258
Свяжитесь со мной на счет цены
10 дн.
T55S690258L37S495581T

На карте


Условия сделки

Источник


Старт продаж

Возможно заинтересует