Top.Mail.Ru

Новочеремушкинская ул., д. 1/14, к. 3

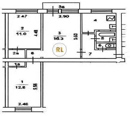
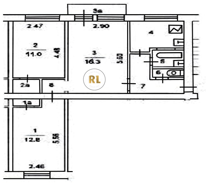
База каталог, Кол-во подъездов: 4, Отсутствует, I-511, Москва, Академический, Площадь парковки: 0, Пассажирский лифт: 0, От метро: 1090, Юго-Западный, нет, Наименьшее кол-во этажей: 5, Наибольшее кол-во этажей: 5, Академическая, Кол-во помещений: 76, Кол-во нежилых помещений: 0, Год ввода в эксплуатацию: 1961, 3-комн, Кол-во жилых помещений: 76, D, дом 1/14, корпус 3, нет, да, да, да, да, да, Имеется, Грузовых лифтов: 0, Год постройки: 1961, Новочеремушкинская улица, 37.589033, 55.690359
Свяжитесь со мной на счет цены
10 дн.
T55S690359L37S589033T

На карте


Условия сделки

Источник


Старт продаж

Возможно заинтересует