Top.Mail.Ru

улица Раменки, д. 14, к. 2

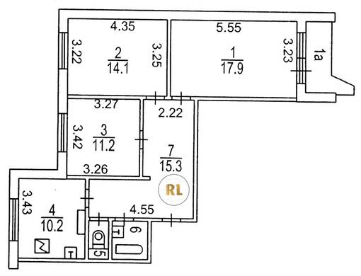
База каталог, Кол-во подъездов: 4, П-44, Москва, Раменки, Площадь парковки: 0, Пассажирский лифт: 4, От метро: 400, Западный, нет, Наименьшее кол-во этажей: 17, Наибольшее кол-во этажей: 17, Мичуринский проспект, Кол-во помещений: 271, Кол-во нежилых помещений: 0, Год ввода в эксплуатацию: 1985, 3-комн, Кол-во жилых помещений: 271, С, дом 14, корпус 2, да, да, да, да, да, да, Имеется, Грузовых лифтов: 4, Год постройки: 1985, улица Раменки, 37.488889, 55.690598
Свяжитесь со мной на счет цены
10 дн.
T55S690598L37S488889T

На карте


Условия сделки

Источник


Старт продаж

Возможно заинтересует