Top.Mail.Ru

Привольная ул., д. 39, к. 2

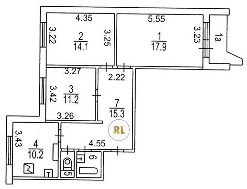
База каталог, Кол-во подъездов: 3, П-44, Москва, Выхино-Жулебино, Площадь парковки: 0, Пассажирский лифт: 3, От метро: 770, Юго-Восточный, нет, Наименьшее кол-во этажей: 1, Наибольшее кол-во этажей: 4, Жулебино, Кол-во помещений: 24, Кол-во нежилых помещений: 0, Год ввода в эксплуатацию: 1995, 3-комн, Кол-во жилых помещений: 24, Не присвоен, дом 39, корпус 2, нет, да, да, да, да, да, Имеется, Грузовых лифтов: 0, Год постройки: 1995, Привольная улица, 37.851386, 55.690623
Свяжитесь со мной на счет цены
10 дн.
T55S690623L37S851386T

На карте


Условия сделки

Источник


Старт продаж

Возможно заинтересует