Top.Mail.Ru

Жулебинский бульвар, д. 23

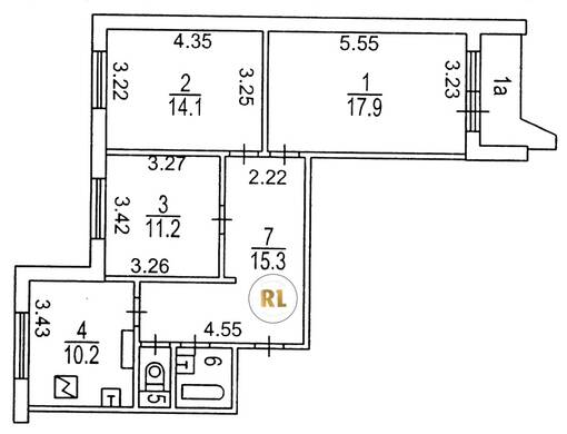
База каталог, Кол-во подъездов: 3, П-44, Москва, Выхино-Жулебино, Площадь парковки: 0, Пассажирский лифт: 3, От метро: 740, Юго-Восточный, нет, Наименьшее кол-во этажей: 1, Наибольшее кол-во этажей: 10, Жулебино, Кол-во помещений: 110, Кол-во нежилых помещений: 2, Год ввода в эксплуатацию: 1995, 3-комн, Кол-во жилых помещений: 108, Не присвоен, дом 23, нет, да, да, да, да, да, Имеется, Грузовых лифтов: 3, Год постройки: 1995, Жулебинский бульвар, 37.853317, 55.690994
Свяжитесь со мной на счет цены
10 дн.
T55S690994L37S853317T

На карте


Условия сделки

Источник


Старт продаж

Возможно заинтересует