Top.Mail.Ru

улица Раменки, д. 9, к. 3

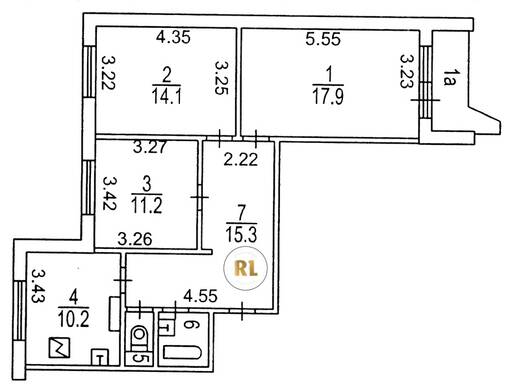
База каталог, Кол-во подъездов: 3, П-44, Москва, Раменки, Площадь парковки: 0, Пассажирский лифт: 3, От метро: 740, Западный, нет, Наименьшее кол-во этажей: 17, Наибольшее кол-во этажей: 17, Раменки, Кол-во помещений: 203, Кол-во нежилых помещений: 0, Год ввода в эксплуатацию: 1985, 3-комн, Кол-во жилых помещений: 203, С, дом 9, корпус 3, нет, да, да, да, да, да, Отсутствует, Грузовых лифтов: 3, Год постройки: 1985, улица Раменки, 37.495410, 55.691105
Свяжитесь со мной на счет цены
10 дн.
T55S691105L37S495410T

На карте


Условия сделки

Источник


Старт продаж

Возможно заинтересует