Top.Mail.Ru

Саранская ул., д. 8

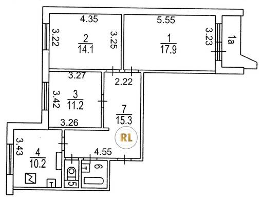
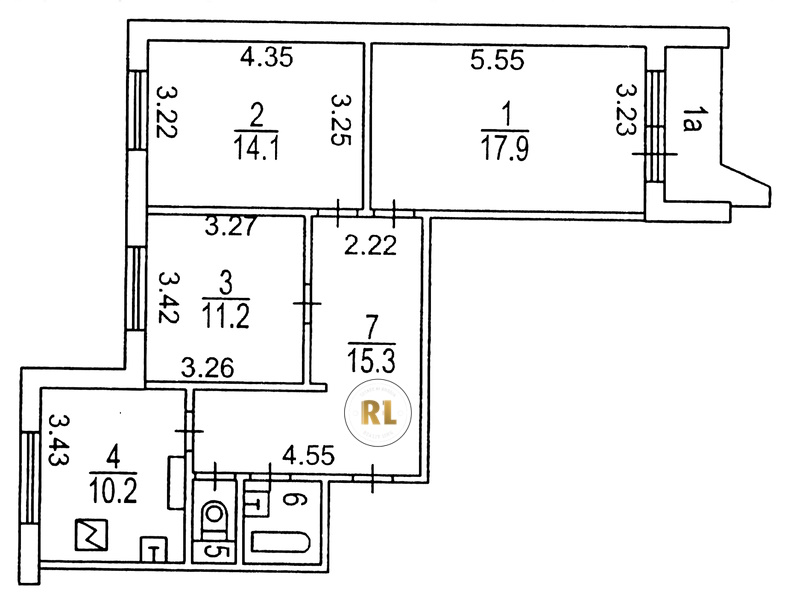
База каталог, Кол-во подъездов: 4, Имеется, П-44, Москва, Выхино-Жулебино, Площадь парковки: 0, Пассажирский лифт: 6, От метро: 650, Юго-Восточный, нет, Наименьшее кол-во этажей: 1, Наибольшее кол-во этажей: 14, Жулебино, Кол-во помещений: 217, Кол-во нежилых помещений: 2, Год ввода в эксплуатацию: 1995, 3-комн, Кол-во жилых помещений: 215, Не присвоен, дом 8, нет, да, да, да, да, да, Имеется, Грузовых лифтов: 2, Год постройки: 1995, Саранская улица, 37.857953, 55.691587
Свяжитесь со мной на счет цены
10 дн.
T55S691587L37S857953T

На карте


Условия сделки

Источник


Старт продаж

Возможно заинтересует