Top.Mail.Ru

улица Раменки, д. 11, к. 1

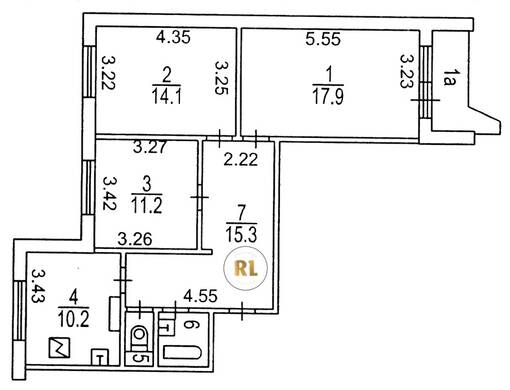
База каталог, Кол-во подъездов: 4, П-44, Москва, Раменки, Площадь парковки: 0, Пассажирский лифт: 4, От метро: 660, Западный, нет, Наименьшее кол-во этажей: 17, Наибольшее кол-во этажей: 17, Раменки, Кол-во помещений: 271, Кол-во нежилых помещений: 0, Год ввода в эксплуатацию: 1985, 3-комн, Кол-во жилых помещений: 271, С, дом 11, корпус 1, нет, да, да, да, да, да, Отсутствует, Грузовых лифтов: 4, Год постройки: 1985, улица Раменки, 37.498249, 55.691785
Свяжитесь со мной на счет цены
10 дн.
T55S691785L37S498249T

На карте


Условия сделки

Источник


Старт продаж

Возможно заинтересует