Top.Mail.Ru

улица Раменки, д. 7, к. 2

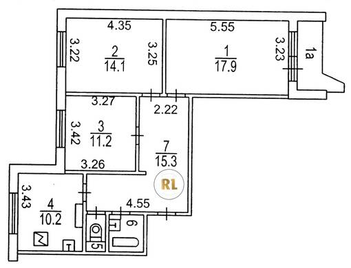
База каталог, Кол-во подъездов: 2, П-44, Москва, Раменки, Площадь парковки: 0, Пассажирский лифт: 2, От метро: 640, Западный, нет, Наименьшее кол-во этажей: 17, Наибольшее кол-во этажей: 17, Раменки, Кол-во помещений: 135, Кол-во нежилых помещений: 0, Год ввода в эксплуатацию: 1985, 3-комн, Кол-во жилых помещений: 135, С, дом 7, корпус 2, нет, да, да, да, да, да, Отсутствует, Грузовых лифтов: 2, Год постройки: 1985, улица Раменки, 37.495366, 55.691887
Свяжитесь со мной на счет цены
10 дн.
T55S691887L37S495366T

На карте


Условия сделки

Источник


Старт продаж

Возможно заинтересует