Top.Mail.Ru

улица Шверника, д. 11, к. 3

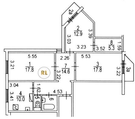
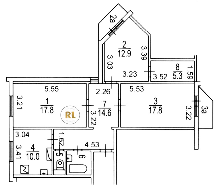
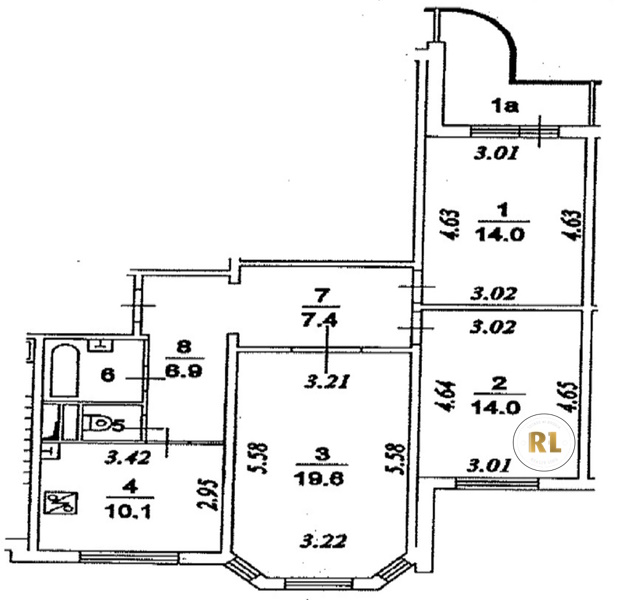
База каталог, Кол-во подъездов: 7, Отсутствует, П-3M, Москва, Академический, Площадь парковки: 0, Пассажирский лифт: 7, От метро: 1180, Юго-Западный, нет, Наименьшее кол-во этажей: 10, Наибольшее кол-во этажей: 17, Академическая, Кол-во помещений: 352, Кол-во нежилых помещений: 0, Год ввода в эксплуатацию: 2000, 3-комн, Кол-во жилых помещений: 352, D, дом 11, корпус 3, нет, да, да, да, да, нет, Имеется, Грузовых лифтов: 7, Год постройки: 2000, улица Шверника, 37.588090, 55.692480
Свяжитесь со мной на счет цены
10 дн.
T55S692480L37S588090T

На карте


Условия сделки

Источник


Старт продаж

Возможно заинтересует