Top.Mail.Ru

улица Шверника, д. 11

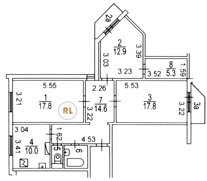
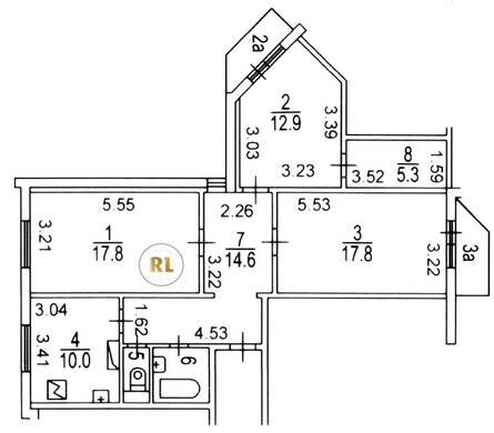
База каталог, Кол-во подъездов: 2, Отсутствует, П-3M, Москва, Академический, Площадь парковки: 0, Пассажирский лифт: 2, От метро: 1100, Юго-Западный, нет, Наименьшее кол-во этажей: 10, Наибольшее кол-во этажей: 10, Академическая, Кол-во помещений: 79, Кол-во нежилых помещений: 0, Год ввода в эксплуатацию: 2000, 3-комн, Кол-во жилых помещений: 79, D, дом 11, нет, да, да, да, да, нет, Отсутствует, Грузовых лифтов: 2, Год постройки: 2000, улица Шверника, 37.586778, 55.692501
Свяжитесь со мной на счет цены
10 дн.
T55S692501L37S586778T

На карте


Условия сделки

Источник


Старт продаж

Возможно заинтересует