Top.Mail.Ru

Севастопольский проспект, д. 3, к. 4

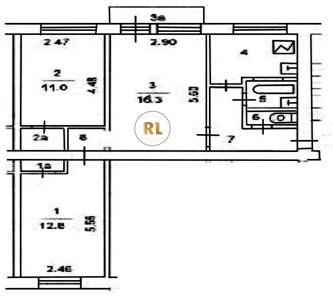
База каталог, Кол-во подъездов: 4, I-511, Москва, Донской, Площадь парковки: 93, Пассажирский лифт: 0, От метро: 520, Южный, да, Наименьшее кол-во этажей: 5, Наибольшее кол-во этажей: 5, Крымская, Кол-во помещений: 80, Кол-во нежилых помещений: 0, Год ввода в эксплуатацию: 1962, 3-комн, Кол-во жилых помещений: 80, Не присвоен, дом 3, корпус 4, да, да, да, да, да, да, Грузовых лифтов: 0, Год постройки: 1962, Севастопольский проспект, 37.611230, 55.692501
Свяжитесь со мной на счет цены
10 дн.
T55S692501L37S611230T

На карте


Условия сделки

Источник


Старт продаж

Возможно заинтересует