Top.Mail.Ru

улица Раменки, д. 7, к. 1

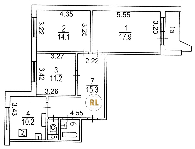
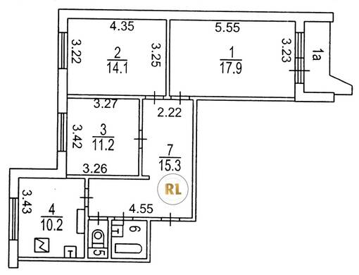
База каталог, Кол-во подъездов: 4, Имеется, П-44, Москва, Раменки, Площадь парковки: 0, Пассажирский лифт: 4, От метро: 560, Западный, нет, Наименьшее кол-во этажей: 17, Наибольшее кол-во этажей: 17, Раменки, Кол-во помещений: 278, Кол-во нежилых помещений: 0, Год ввода в эксплуатацию: 1985, 3-комн, Кол-во жилых помещений: 278, С, дом 7, корпус 1, да, да, да, да, да, да, Имеется, Грузовых лифтов: 4, Год постройки: 1985, улица Раменки, 37.496704, 55.692648
Свяжитесь со мной на счет цены
10 дн.
T55S692648L37S496704T

На карте


Условия сделки

Источник


Старт продаж

Возможно заинтересует