Top.Mail.Ru

Севастопольский проспект, д. 3, к. 2

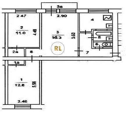
База каталог, Кол-во подъездов: 4, I-511, Москва, Донской, Площадь парковки: 340, Пассажирский лифт: 0, От метро: 440, Южный, да, Наименьшее кол-во этажей: 5, Наибольшее кол-во этажей: 5, Крымская, Кол-во помещений: 64, Кол-во нежилых помещений: 0, Год ввода в эксплуатацию: 1963, 3-комн, Кол-во жилых помещений: 64, Не присвоен, дом 3, корпус 2, да, да, да, да, да, да, Грузовых лифтов: 0, Год постройки: 1963, Севастопольский проспект, 37.609955, 55.692876
Свяжитесь со мной на счет цены
10 дн.
T55S692876L37S609955T

На карте


Условия сделки

Источник


Старт продаж

Возможно заинтересует