Top.Mail.Ru

улица Раменки, д. 6, к. 2

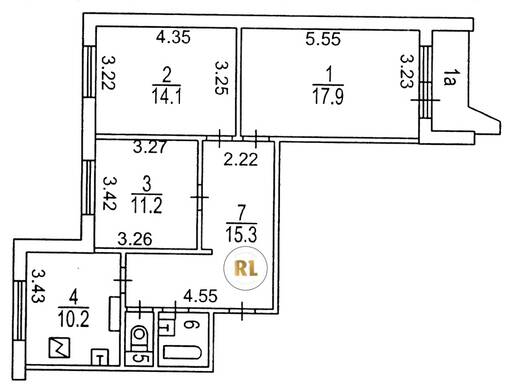
База каталог, Кол-во подъездов: 3, П-44, Москва, Раменки, Площадь парковки: 0, Пассажирский лифт: 3, От метро: 500, Западный, нет, Наименьшее кол-во этажей: 17, Наибольшее кол-во этажей: 17, Раменки, Кол-во помещений: 192, Кол-во нежилых помещений: 0, Год ввода в эксплуатацию: 1985, 3-комн, Кол-во жилых помещений: 192, С, дом 6, корпус 2, да, да, да, да, да, да, Имеется, Грузовых лифтов: 3, Год постройки: 1985, улица Раменки, 37.492536, 55.693094
Свяжитесь со мной на счет цены
10 дн.
T55S693094L37S492536T

На карте


Условия сделки

Источник


Старт продаж

Возможно заинтересует