Top.Mail.Ru

Мичуринский проспект, д. 29, к. 1

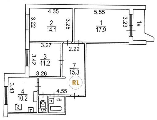
База каталог, Кол-во подъездов: 4, Отсутствует, П-44, Москва, Раменки, Площадь парковки: 0, Пассажирский лифт: 4, От метро: 630, Западный, нет, Наименьшее кол-во этажей: 17, Наибольшее кол-во этажей: 17, Раменки, Кол-во помещений: 263, Кол-во нежилых помещений: 0, Год ввода в эксплуатацию: 1995, 3-комн, Кол-во жилых помещений: 263, С, дом 29, корпус 1, нет, да, да, да, да, да, Отсутствует, Грузовых лифтов: 4, Год постройки: 1995, Мичуринский проспект, 37.503657, 55.693206
Свяжитесь со мной на счет цены
10 дн.
T55S693206L37S503657T

На карте


Условия сделки

Источник


Старт продаж

Возможно заинтересует