Top.Mail.Ru

улица Раменки, д. 6, к. 1

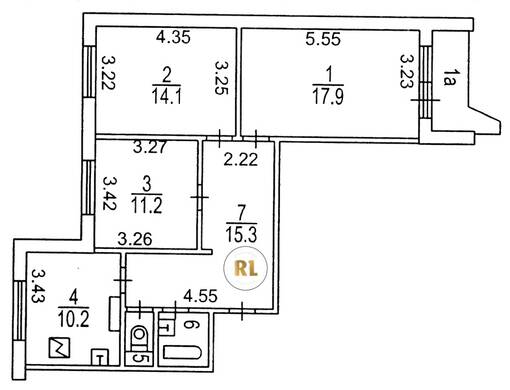
База каталог, Кол-во подъездов: 2, П-44, Москва, Раменки, Площадь парковки: 0, Пассажирский лифт: 2, От метро: 480, Западный, нет, Наименьшее кол-во этажей: 17, Наибольшее кол-во этажей: 17, Раменки, Кол-во помещений: 135, Кол-во нежилых помещений: 0, Год ввода в эксплуатацию: 1985, 3-комн, Кол-во жилых помещений: 135, С, дом 6, корпус 1, да, да, да, да, да, да, Отсутствует, Грузовых лифтов: 2, Год постройки: 1985, улица Раменки, 37.493587, 55.693287
Свяжитесь со мной на счет цены
10 дн.
T55S693287L37S493587T

На карте


Условия сделки

Источник


Старт продаж

Возможно заинтересует