Top.Mail.Ru

Люблинская ул., д. 47

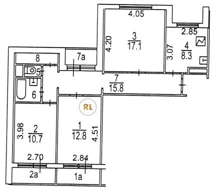
База каталог, Кол-во подъездов: 6, Имеется, П-55, Москва, Текстильщики, Площадь парковки: 0, Пассажирский лифт: 6, От метро: 820, Юго-Восточный, нет, Наименьшее кол-во этажей: 14, Наибольшее кол-во этажей: 14, Печатники, Кол-во помещений: 271, Кол-во нежилых помещений: 7, Год ввода в эксплуатацию: 1999, 3-комн, Кол-во жилых помещений: 264, Не присвоен, дом 47, нет, да, да, да, да, да, Имеется, Грузовых лифтов: 6, Год постройки: 1999, Люблинская улица, 37.735359, 55.693424
Свяжитесь со мной на счет цены
10 дн.
T55S693424L37S735359T

На карте


Условия сделки

Источник


Старт продаж

Возможно заинтересует