Top.Mail.Ru

Севастопольский проспект, д. 1, к. 1А

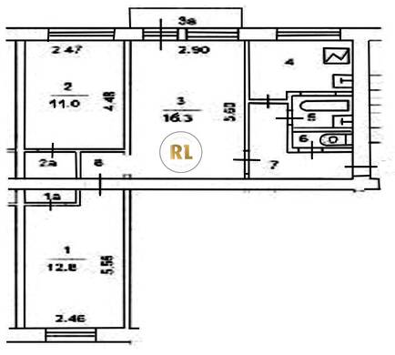
База каталог, Кол-во подъездов: 4, I-511, Москва, Донской, Площадь парковки: 199, Пассажирский лифт: 0, От метро: 540, Южный, да, Наименьшее кол-во этажей: 5, Наибольшее кол-во этажей: 5, Крымская, Кол-во помещений: 77, Кол-во нежилых помещений: 0, Год ввода в эксплуатацию: 1979, 3-комн, Кол-во жилых помещений: 77, Не присвоен, дом 1, корпус 1А, да, да, да, да, да, да, Имеется, Грузовых лифтов: 0, Год постройки: 1979, Севастопольский проспект, 37.610853, 55.693830
Свяжитесь со мной на счет цены
10 дн.
T55S693830L37S610853T

На карте


Условия сделки

Источник


Старт продаж

Возможно заинтересует