Top.Mail.Ru

Загородное шоссе, д. 8, к. 2

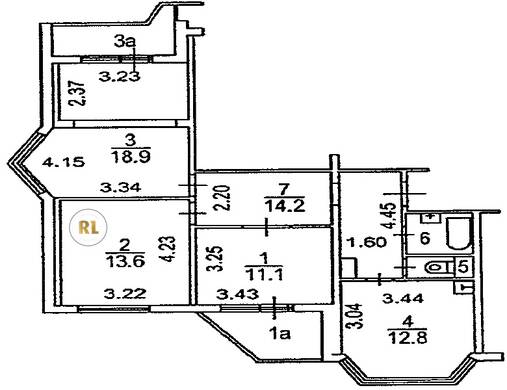
База каталог, Кол-во подъездов: 3, П-44T, Москва, Донской, Площадь парковки: 0, Пассажирский лифт: 3, От метро: 650, Южный, нет, Наименьшее кол-во этажей: 17, Наибольшее кол-во этажей: 17, Крымская, Кол-во помещений: 194, Кол-во нежилых помещений: 2, Год ввода в эксплуатацию: 2006, 3-комн, Кол-во жилых помещений: 192, В, дом 8, корпус 2, нет, да, да, да, да, да, Грузовых лифтов: 0, Год постройки: 2006, Загородное шоссе, 37.602633, 55.694434
Свяжитесь со мной на счет цены
10 дн.
T55S694434L37S602633T

На карте


Условия сделки

Источник


Старт продаж

Возможно заинтересует