Top.Mail.Ru

Мичуринский проспект, д. 31, к. 2

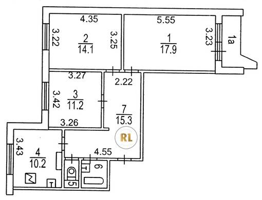
База каталог, Кол-во подъездов: 5, Отсутствует, П-44, Москва, Раменки, Площадь парковки: 0, Пассажирский лифт: 5, От метро: 182, Западный, нет, Наименьшее кол-во этажей: 17, Наибольшее кол-во этажей: 17, Раменки, Кол-во помещений: 338, Кол-во нежилых помещений: 0, Год ввода в эксплуатацию: 1990, 3-комн, Кол-во жилых помещений: 338, С, дом 31, корпус 2, да, да, да, да, да, да, Отсутствует, Грузовых лифтов: 5, Год постройки: 1990, Мичуринский проспект, 37.498240, 55.695139
Свяжитесь со мной на счет цены
10 дн.
T55S695139L37S498240T

На карте


Условия сделки

Источник


Старт продаж

Возможно заинтересует