Top.Mail.Ru

Привольная ул., д. 27, к. 1

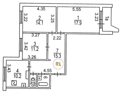
База каталог, Кол-во подъездов: 4, П-44, Москва, Выхино-Жулебино, Площадь парковки: 0, Пассажирский лифт: 8, От метро: 680, Юго-Восточный, нет, Наименьшее кол-во этажей: 1, Наибольшее кол-во этажей: 10, Лермонтовский проспект, Кол-во помещений: 158, Кол-во нежилых помещений: 6, Год ввода в эксплуатацию: 1999, 3-комн, Кол-во жилых помещений: 152, Не присвоен, дом 27, корпус 1, нет, да, да, да, да, да, Имеется, Грузовых лифтов: 0, Год постройки: 1999, Привольная улица, 37.849481, 55.695261
Свяжитесь со мной на счет цены
10 дн.
T55S695261L37S849481T

На карте


Условия сделки

Источник


Старт продаж

Возможно заинтересует