Top.Mail.Ru

Люблинская ул., д. 39/2

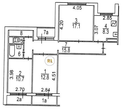
База каталог, Кол-во подъездов: 6, Имеется, П-55, Москва, Текстильщики, Площадь парковки: 0, Пассажирский лифт: 8, От метро: 1000, Юго-Восточный, нет, Наименьшее кол-во этажей: 14, Наибольшее кол-во этажей: 14, Печатники, Кол-во помещений: 269, Кол-во нежилых помещений: 2, Год ввода в эксплуатацию: 1999, 3-комн, Кол-во жилых помещений: 267, Не присвоен, дом 39/2, нет, да, да, да, да, да, Имеется, Грузовых лифтов: 4, Год постройки: 1999, Люблинская улица, 37.734847, 55.695286
Свяжитесь со мной на счет цены
10 дн.
T55S695286L37S734847T

На карте


Условия сделки

Источник


Старт продаж

Возможно заинтересует