Top.Mail.Ru

Мичуринский проспект, д. 31, к. 1

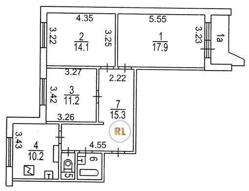
База каталог, Кол-во подъездов: 4, Отсутствует, П-44, Москва, Раменки, Площадь парковки: 0, Пассажирский лифт: 4, От метро: 146, Западный, нет, Наименьшее кол-во этажей: 17, Наибольшее кол-во этажей: 17, Раменки, Кол-во помещений: 255, Кол-во нежилых помещений: 0, Год ввода в эксплуатацию: 1990, 3-комн, Кол-во жилых помещений: 255, С, дом 31, корпус 1, да, да, да, да, да, да, Отсутствует, Грузовых лифтов: 4, Год постройки: 1990, Мичуринский проспект, 37.496614, 55.695357
Свяжитесь со мной на счет цены
10 дн.
T55S695357L37S496614T

На карте


Условия сделки

Источник


Старт продаж

Возможно заинтересует