Top.Mail.Ru

Моршанская ул., д. 4

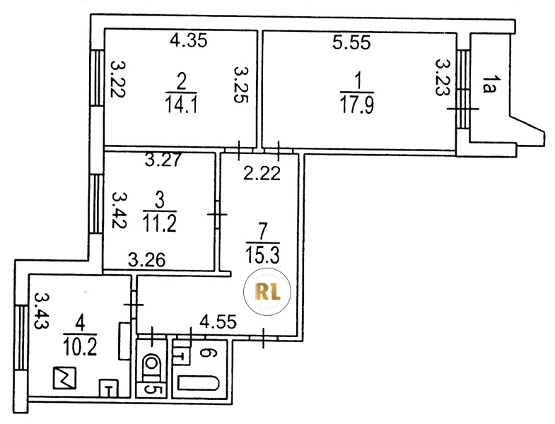
База каталог, Кол-во подъездов: 5, Имеется, П-44, Москва, Выхино-Жулебино, Площадь парковки: 0, Пассажирский лифт: 5, От метро: 590, Юго-Восточный, нет, Наименьшее кол-во этажей: 1, Наибольшее кол-во этажей: 14, Лермонтовский проспект, Кол-во помещений: 274, Кол-во нежилых помещений: 3, Год ввода в эксплуатацию: 1993, 3-комн, Кол-во жилых помещений: 271, С, дом 4, да, да, да, да, да, да, Имеется, Грузовых лифтов: 5, Год постройки: 1993, Моршанская улица, 37.855401, 55.696123
Свяжитесь со мной на счет цены
10 дн.
T55S696123L37S855401T

На карте


Условия сделки

Источник


Старт продаж

Возможно заинтересует