Top.Mail.Ru

улица Льва Яшина, д. 7

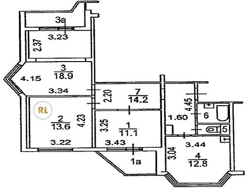
База каталог, Кол-во подъездов: 5, П-44К, Москва, Некрасовка, Площадь парковки: 0, Пассажирский лифт: 5, От метро: 700, Юго-Восточный, нет, Наименьшее кол-во этажей: 17, Наибольшее кол-во этажей: 17, Некрасовка, Кол-во помещений: 329, Кол-во нежилых помещений: 9, Год ввода в эксплуатацию: 2015, 3-комн, Кол-во жилых помещений: 320, В, дом 7, нет, да, да, да, да, да, Имеется, Грузовых лифтов: 5, Год постройки: 2015, улица Льва Яшина, 37.924015, 55.697539
Свяжитесь со мной на счет цены
10 дн.
T55S697539L37S924015T

На карте


Условия сделки

Источник


Старт продаж

Возможно заинтересует