Top.Mail.Ru

Покровская ул., д.17А, к.1

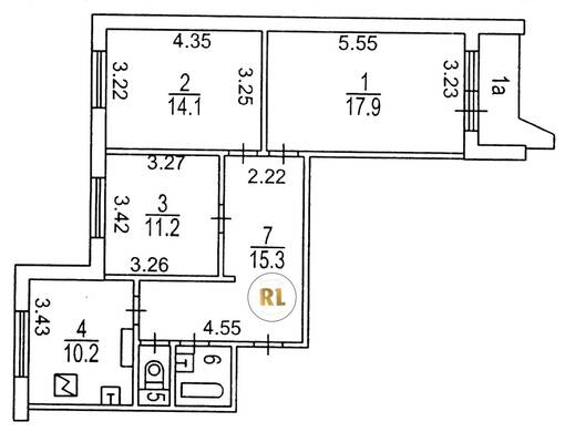
База каталог, Кол-во подъездов: 2, Имеется, П-44, Москва, Некрасовка, Площадь парковки: 0, Пассажирский лифт: 3, От метро: 510, Юго-Восточный, нет, Наименьшее кол-во этажей: 25, Наибольшее кол-во этажей: 25, Некрасовка, Кол-во помещений: 195, Кол-во нежилых помещений: 3, Год ввода в эксплуатацию: 2018, 3-комн, Кол-во жилых помещений: 192, В+, дом 17А, к.1, да, да, да, да, да, да, Имеется, Грузовых лифтов: 3, Год постройки: 2018, Покровская улица, 37.935513, 55.698533
Свяжитесь со мной на счет цены
10 дн.
T55S698533L37S935513T

На карте


Условия сделки

Источник


Старт продаж

Возможно заинтересует