Top.Mail.Ru

квартал Самаркандский Бульвар 137а, к. 7

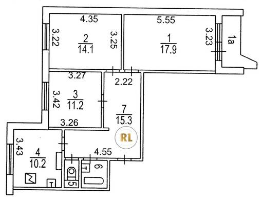
База каталог, Кол-во подъездов: 2, П-44, Москва, Выхино-Жулебино, Площадь парковки: 0, Пассажирский лифт: 2, От метро: 850, Юго-Восточный, нет, Наименьшее кол-во этажей: 17, Наибольшее кол-во этажей: 17, Юго-Восточная, Кол-во помещений: 131, Кол-во нежилых помещений: 3, Год ввода в эксплуатацию: 1996, 3-комн, Кол-во жилых помещений: 128, корпус 7, нет, да, да, да, да, да, Имеется, Грузовых лифтов: 2, Год постройки: 1996, квартал Самаркандский Бульвар 137а, 37.816603, 55.698746
Свяжитесь со мной на счет цены
10 дн.
T55S698746L37S816603T

На карте


Условия сделки

Источник


Старт продаж

Возможно заинтересует