Top.Mail.Ru

Покровская ул., д.17, к.5

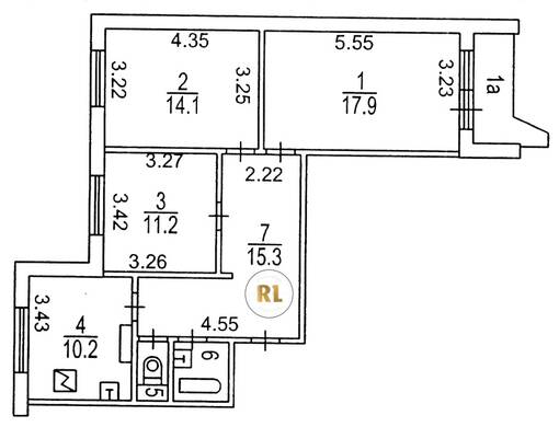
База каталог, Кол-во подъездов: 3, Имеется, П-44, Москва, Некрасовка, Площадь парковки: 0, Пассажирский лифт: 3, От метро: 410, Юго-Восточный, нет, Наименьшее кол-во этажей: 25, Наибольшее кол-во этажей: 25, Некрасовка, Кол-во помещений: 290, Кол-во нежилых помещений: 2, Год ввода в эксплуатацию: 2018, 3-комн, Кол-во жилых помещений: 288, В+, дом 17, к.5, да, да, да, да, да, да, Имеется, Грузовых лифтов: 6, Год постройки: 2018, Покровская улица, 37.930905, 55.698802
Свяжитесь со мной на счет цены
10 дн.
T55S698802L37S930905T

На карте


Условия сделки

Источник


Старт продаж

Возможно заинтересует