Top.Mail.Ru

улица Льва Яшина, д. 1

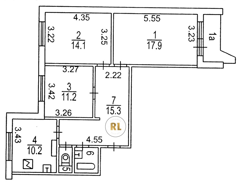
База каталог, Кол-во подъездов: 3, П-44-1/17, Москва, Некрасовка, Площадь парковки: 0, Пассажирский лифт: 3, От метро: 650, Юго-Восточный, нет, Наименьшее кол-во этажей: 17, Наибольшее кол-во этажей: 17, Некрасовка, Кол-во помещений: 198, Кол-во нежилых помещений: 6, Год ввода в эксплуатацию: 2014, 3-комн, Кол-во жилых помещений: 192, В+, дом 1, нет, да, да, да, да, да, Имеется, Грузовых лифтов: 3, Год постройки: 2013, улица Льва Яшина, 37.921499, 55.698903
Свяжитесь со мной на счет цены
10 дн.
T55S698903L37S921499T

На карте


Условия сделки

Источник


Старт продаж

Возможно заинтересует