Top.Mail.Ru

Покровская ул., д.17А, к.2

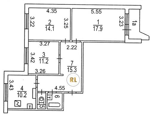
База каталог, Кол-во подъездов: 3, Имеется, П-44, Москва, Некрасовка, Площадь парковки: 0, Пассажирский лифт: 3, От метро: 450, Юго-Восточный, нет, Наименьшее кол-во этажей: 19, Наибольшее кол-во этажей: 19, Некрасовка, Кол-во помещений: 198, Кол-во нежилых помещений: 6, Год ввода в эксплуатацию: 2018, 3-комн, Кол-во жилых помещений: 192, В+, дом 17А, к.2, да, да, да, да, да, да, Имеется, Грузовых лифтов: 3, Год постройки: 2018, Покровская улица, 37.934929, 55.698939
Свяжитесь со мной на счет цены
10 дн.
T55S698939L37S934929T

На карте


Условия сделки

Источник


Старт продаж

Возможно заинтересует