Top.Mail.Ru

Покровская ул., д. 12

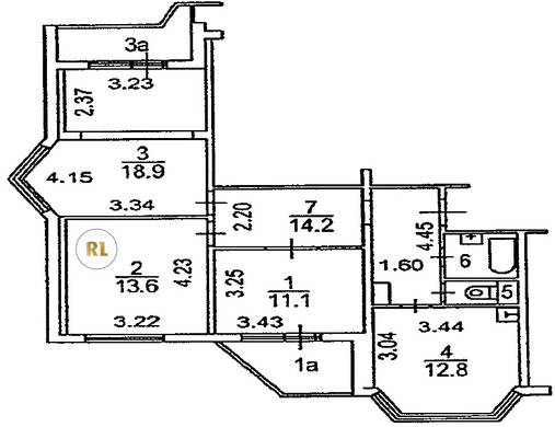
База каталог, Кол-во подъездов: 4, Имеется, П-44T, Москва, Некрасовка, Площадь парковки: 0, Пассажирский лифт: 6, От метро: 670, Юго-Восточный, нет, Наименьшее кол-во этажей: 25, Наибольшее кол-во этажей: 25, Некрасовка, Кол-во помещений: 390, Кол-во нежилых помещений: 6, Год ввода в эксплуатацию: 2017, 3-комн, Кол-во жилых помещений: 384, В+, дом 12, нет, да, да, да, да, да, Имеется, Грузовых лифтов: 6, Год постройки: 2017, Покровская улица, 37.938711, 55.699030
Свяжитесь со мной на счет цены
10 дн.
T55S699030L37S938711T

На карте


Условия сделки

Источник


Старт продаж

Возможно заинтересует