Top.Mail.Ru

Покровская ул., д. 14

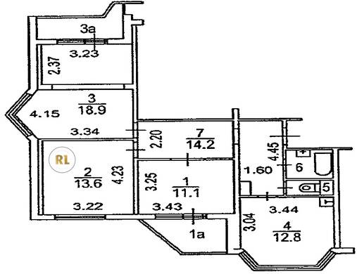
База каталог, Кол-во подъездов: 5, Отсутствует, П-44T, Москва, Некрасовка, Площадь парковки: 0, Пассажирский лифт: 5, От метро: 500, Юго-Восточный, нет, Наименьшее кол-во этажей: 17, Наибольшее кол-во этажей: 17, Некрасовка, Кол-во помещений: 325, Кол-во нежилых помещений: 5, Год ввода в эксплуатацию: 2017, 3-комн, Кол-во жилых помещений: 320, В+, дом 14, да, да, да, да, да, да, Имеется, Грузовых лифтов: 5, Год постройки: 2016, Покровская улица, 37.936690, 55.699533
Свяжитесь со мной на счет цены
10 дн.
T55S699533L37S936690T

На карте


Условия сделки

Источник


Старт продаж

Возможно заинтересует