Top.Mail.Ru

Привольная ул., д. 9, к. 3

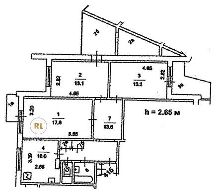
База каталог, Кол-во подъездов: 2, Имеется, П-3/16, Москва, Выхино-Жулебино, Площадь парковки: 0, Пассажирский лифт: 2, От метро: 930, Юго-Восточный, нет, Наименьшее кол-во этажей: 1, Наибольшее кол-во этажей: 12, Лермонтовский проспект, Кол-во помещений: 96, Кол-во нежилых помещений: 0, Год ввода в эксплуатацию: 1992, 3-комн, Кол-во жилых помещений: 96, Не присвоен, дом 9, корпус 3, нет, да, да, да, да, да, Имеется, Грузовых лифтов: 2, Год постройки: 1992, Привольная улица, 37.839735, 55.699680
Свяжитесь со мной на счет цены
10 дн.
T55S699680L37S839735T

На карте


Условия сделки

Источник


Старт продаж

Возможно заинтересует