Top.Mail.Ru

улица Ухтомского Ополчения, д. 3

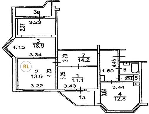
База каталог, Кол-во подъездов: 4, П-44T, Москва, Некрасовка, Площадь парковки: 0, Пассажирский лифт: 4, От метро: 340, Юго-Восточный, нет, Наименьшее кол-во этажей: 17, Наибольшее кол-во этажей: 17, Некрасовка, Кол-во помещений: 261, Кол-во нежилых помещений: 5, Год ввода в эксплуатацию: 2015, 3-комн, Кол-во жилых помещений: 256, В+, дом 3, да, да, да, да, да, да, Имеется, Грузовых лифтов: 4, Год постройки: 2015, улица Ухтомского Ополчения, 37.926719, 55.699776
15 800 000 Р
10 дн.
T55S699776L37S926719T
+

На карте


Условия сделки

Источник


Старт продаж