Top.Mail.Ru

улица Недорубова, д. 5

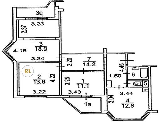
База каталог, Кол-во подъездов: 2, П-44T, Москва, Некрасовка, Площадь парковки: 0, Пассажирский лифт: 2, От метро: 245, Юго-Восточный, нет, Наименьшее кол-во этажей: 25, Наибольшее кол-во этажей: 25, Некрасовка, Кол-во помещений: 195, Кол-во нежилых помещений: 3, Год ввода в эксплуатацию: 2015, 3-комн, Кол-во жилых помещений: 192, В+, дом 5, да, да, да, да, да, да, Имеется, Грузовых лифтов: 4, Год постройки: 2015, улица Недорубова, 37.930042, 55.700116
Свяжитесь со мной на счет цены
10 дн.
T55S700116L37S930042T

На карте


Условия сделки

Источник


Старт продаж

Возможно заинтересует