Top.Mail.Ru

Привольная ул., д. 13, к. 1

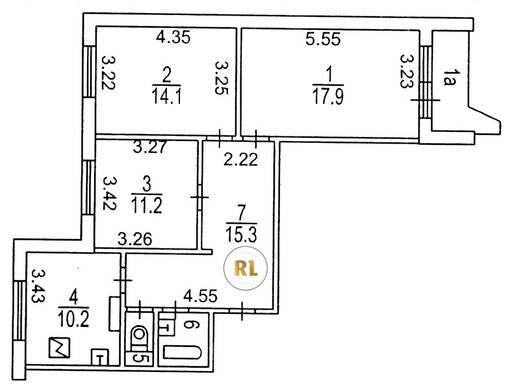
База каталог, Кол-во подъездов: 4, Имеется, П-44-1/17, Москва, Выхино-Жулебино, Пассажирский лифт: 4, От метро: 1010, Юго-Восточный, да, Наименьшее кол-во этажей: 17, Наибольшее кол-во этажей: 17, Лермонтовский проспект, Кол-во помещений: 266, Кол-во нежилых помещений: 2, Год ввода в эксплуатацию: 1992, 3-комн, Кол-во жилых помещений: 264, дом 13, корпус 1, нет, да, да, да, да, да, Имеется, Грузовых лифтов: 4, Год постройки: 1992, Привольная улица, 37.838621, 55.700177
Свяжитесь со мной на счет цены
10 дн.
T55S700177L37S838621T

На карте


Условия сделки

Источник


Старт продаж

Возможно заинтересует