Top.Mail.Ru

Покровская ул., д. 16

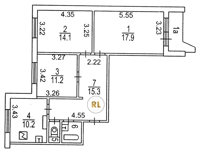
База каталог, Кол-во подъездов: 5, П-44-1/17, Москва, Некрасовка, Площадь парковки: 0, Пассажирский лифт: 5, От метро: 340, Юго-Восточный, нет, Наименьшее кол-во этажей: 17, Наибольшее кол-во этажей: 17, Некрасовка, Кол-во помещений: 324, Кол-во нежилых помещений: 4, Год ввода в эксплуатацию: 2017, 3-комн, Кол-во жилых помещений: 320, В+, дом 16, да, да, да, да, да, да, Имеется, Грузовых лифтов: 5, Год постройки: 2015, Покровская улица, 37.934642, 55.700334
Свяжитесь со мной на счет цены
10 дн.
T55S700334L37S934642T

На карте


Условия сделки

Источник


Старт продаж

Возможно заинтересует