Top.Mail.Ru

улица Юных Ленинцев, д. 44, к. 1

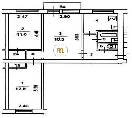
База каталог, Кол-во подъездов: 4, I-511, Москва, Кузьминки, Пассажирский лифт: 0, От метро: 760, Юго-Восточный, да, Наименьшее кол-во этажей: 5, Наибольшее кол-во этажей: 5, Кузьминки, Кол-во помещений: 78, Кол-во нежилых помещений: 0, Год ввода в эксплуатацию: 1959, 3-комн, Кол-во жилых помещений: 78, дом 44, корпус 1, нет, да, да, да, да, да, Грузовых лифтов: 0, Год постройки: 1959, улица Юных Ленинцев, 37.759668, 55.700344
Свяжитесь со мной на счет цены
10 дн.
T55S700344L37S759668T

На карте


Условия сделки

Источник


Старт продаж

Возможно заинтересует