Top.Mail.Ru

проспект Защитников Москвы, д. 10

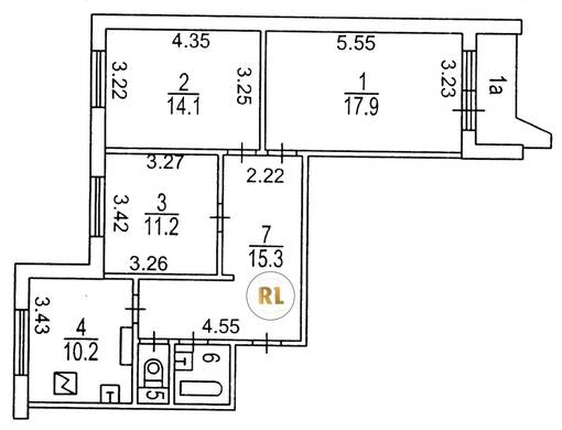
База каталог, Кол-во подъездов: 5, П-44-1/17, Москва, Некрасовка, Площадь парковки: 0, Пассажирский лифт: 5, От метро: 370, Юго-Восточный, нет, Наименьшее кол-во этажей: 17, Наибольшее кол-во этажей: 17, Некрасовка, Кол-во помещений: 330, Кол-во нежилых помещений: 10, Год ввода в эксплуатацию: 2013, 3-комн, Кол-во жилых помещений: 320, В+, дом 10, да, да, да, да, да, да, Имеется, Грузовых лифтов: 5, Год постройки: 2013, проспект Защитников Москвы, 37.922389, 55.700689
Свяжитесь со мной на счет цены
10 дн.
T55S700689L37S922389T

На карте


Условия сделки

Источник


Старт продаж

Возможно заинтересует