Top.Mail.Ru

улица Вертолетчиков, д. 5, к. 1

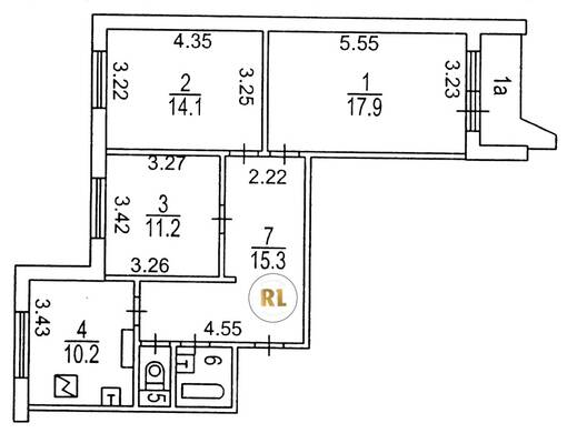
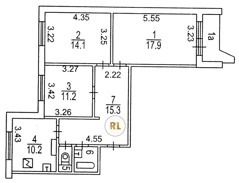
База каталог, Кол-во нежилых помещений: 6, П-44-1/17, Москва, Некрасовка, Пассажирский лифт: 8, От метро: 710, Юго-Восточный, да, Наименьшее кол-во этажей: 17, Наибольшее кол-во этажей: 17, Некрасовка, Кол-во помещений: 262, Кол-во подъездов: 4, 3-комн, Год ввода в эксплуатацию: 2016, Кол-во жилых помещений: 256, Не присвоен, дом 5, корпус 1, нет, да, да, да, да, да, Имеется, Грузовых лифтов: 0, Год постройки: 2016, улица Вертолетчиков, 37.939457, 55.700887
Свяжитесь со мной на счет цены
10 дн.
T55S700887L37S939457T

На карте


Условия сделки

Источник


Старт продаж

Возможно заинтересует