Top.Mail.Ru

Покровская ул., д. 21

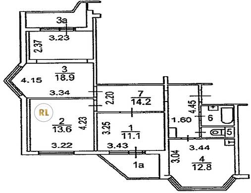
База каталог, Кол-во подъездов: 5, П-44T, Москва, Некрасовка, Площадь парковки: 0, Пассажирский лифт: 5, От метро: 89, Юго-Восточный, нет, Наименьшее кол-во этажей: 17, Наибольшее кол-во этажей: 17, Некрасовка, Кол-во помещений: 328, Кол-во нежилых помещений: 8, Год ввода в эксплуатацию: 2015, 3-комн, Кол-во жилых помещений: 320, В+, дом 21, да, да, да, да, да, да, Имеется, Грузовых лифтов: 5, Год постройки: 2015, Покровская улица, 37.930033, 55.701420
Свяжитесь со мной на счет цены
10 дн.
T55S701420L37S930033T

На карте


Условия сделки

Источник


Старт продаж

Возможно заинтересует