Top.Mail.Ru

улица Малышева, д. 5

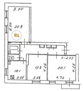
База каталог, Кол-во подъездов: 1, Имеется, II-05, Москва, Текстильщики, Площадь парковки: 0, Пассажирский лифт: 1, От метро: 1350, Юго-Восточный, нет, Наименьшее кол-во этажей: 12, Наибольшее кол-во этажей: 12, Текстильщики, Кол-во помещений: 72, Кол-во нежилых помещений: 0, Год ввода в эксплуатацию: 1973, 3-комн, Кол-во жилых помещений: 72, Не присвоен, дом 5, нет, да, да, да, да, нет, Имеется, Грузовых лифтов: 1, Год постройки: 1973, улица Малышева, 37.742555, 55.701481
Свяжитесь со мной на счет цены
10 дн.
T55S701481L37S742555T

На карте


Условия сделки

Источник


Старт продаж

Возможно заинтересует