Top.Mail.Ru

Мичуринский проспект, д. 9, к. 2

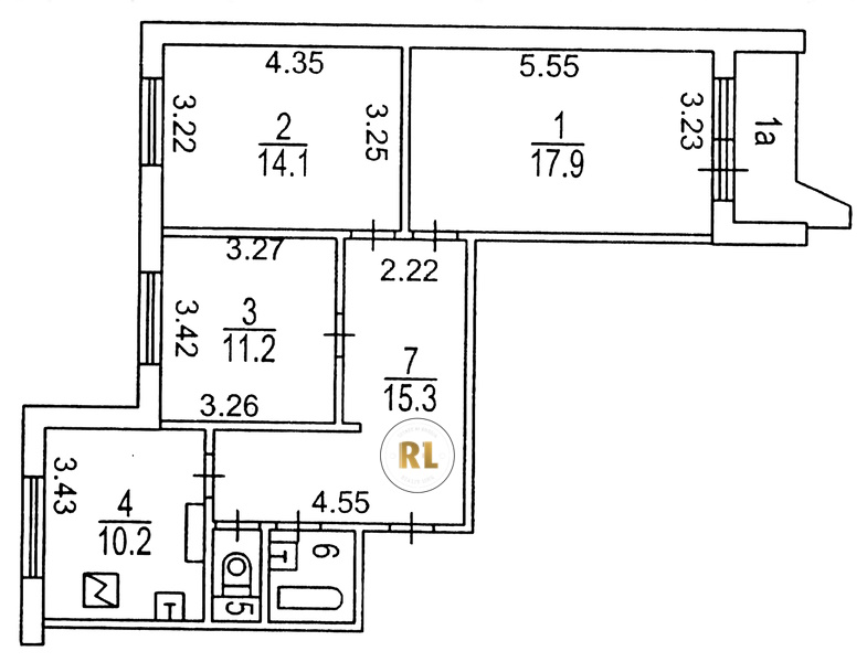
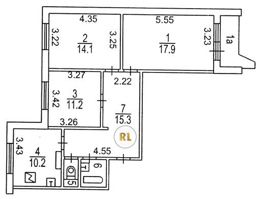
База каталог, Кол-во подъездов: 3, П-44-1/17, Москва, Раменки, Пассажирский лифт: 3, От метро: 600, Западный, да, Наименьшее кол-во этажей: 3, Наибольшее кол-во этажей: 17, Ломоносовский проспект, Кол-во помещений: 197, Кол-во нежилых помещений: 5, Год ввода в эксплуатацию: 2000, 3-комн, Кол-во жилых помещений: 192, дом 9, корпус 2, нет, да, да, да, да, да, Имеется, Грузовых лифтов: 3, Год постройки: 2000, Мичуринский проспект, 37.509020, 55.701521
Свяжитесь со мной на счет цены
10 дн.
T55S701521L37S509020T

На карте


Условия сделки

Источник


Старт продаж

Возможно заинтересует