Top.Mail.Ru

Лавриненко ул., д.5

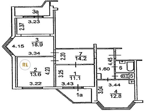
База каталог, Кол-во подъездов: 5, Имеется, П-44К, Москва, Некрасовка, Площадь парковки: 0, Пассажирский лифт: 5, От метро: 1250, Юго-Восточный, нет, Наименьшее кол-во этажей: 17, Наибольшее кол-во этажей: 17, Некрасовка, Кол-во помещений: 328, Кол-во нежилых помещений: 8, Год ввода в эксплуатацию: 2018, 3-комн, Кол-во жилых помещений: 320, А, дом 5, нет, да, да, да, да, нет, Имеется, Грузовых лифтов: 5, Год постройки: 2018, Лавриненко улица, 37.946598, 55.701587
Свяжитесь со мной на счет цены
10 дн.
T55S701587L37S946598T

На карте


Условия сделки

Источник


Старт продаж

Возможно заинтересует