Top.Mail.Ru

улица Трофимова, д. 32, к. 1

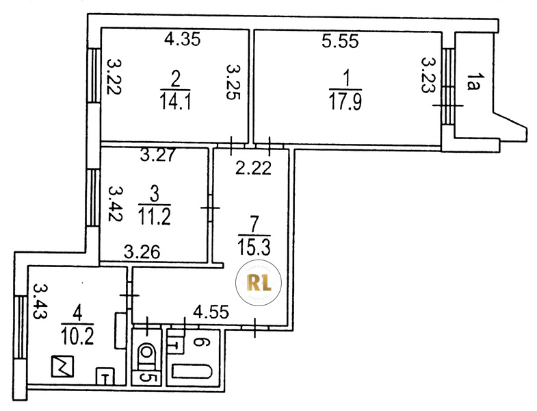
База каталог, Кол-во подъездов: 5, Отсутствует, П-44, Москва, Южнопортовый, Площадь парковки: 0, Пассажирский лифт: 5, От метро: 560, Юго-Восточный, нет, Наименьшее кол-во этажей: 17, Наибольшее кол-во этажей: 17, Кожуховская, Кол-во помещений: 330, Кол-во нежилых помещений: 2, Год ввода в эксплуатацию: 1990, 3-комн, Кол-во жилых помещений: 328, Не присвоен, дом 32, корпус 1, да, да, да, да, да, да, Имеется, Грузовых лифтов: 5, Год постройки: 1990, улица Трофимова, 37.684856, 55.702186
Свяжитесь со мной на счет цены
10 дн.
T55S702186L37S684856T

На карте


Условия сделки

Источник


Старт продаж

Возможно заинтересует