Top.Mail.Ru

Лавриненко ул., д.3А

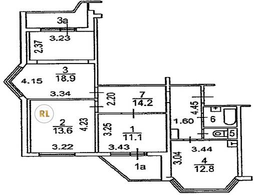
База каталог, Кол-во подъездов: 3, Имеется, П-44К, Москва, Некрасовка, Площадь парковки: 0, Пассажирский лифт: 3, От метро: 1150, Юго-Восточный, нет, Наименьшее кол-во этажей: 17, Наибольшее кол-во этажей: 17, Некрасовка, Кол-во помещений: 197, Кол-во нежилых помещений: 5, Год ввода в эксплуатацию: 2018, 3-комн, Кол-во жилых помещений: 192, А, дом 3А, нет, да, да, да, да, нет, Имеется, Грузовых лифтов: 3, Год постройки: 2018, Лавриненко улица, 37.944820, 55.702348
Свяжитесь со мной на счет цены
10 дн.
T55S702348L37S944820T

На карте


Условия сделки

Источник


Старт продаж

Возможно заинтересует