Top.Mail.Ru

улица Недорубова, д. 18, к. 1

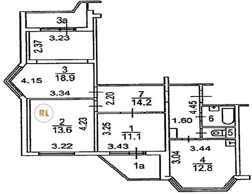
База каталог, Кол-во нежилых помещений: 3, П-44T, Москва, Некрасовка, Пассажирский лифт: 3, От метро: 470, Юго-Восточный, да, Наименьшее кол-во этажей: 25, Наибольшее кол-во этажей: 25, Некрасовка, Кол-во помещений: 195, Кол-во подъездов: 2, 3-комн, Год ввода в эксплуатацию: 2016, Кол-во жилых помещений: 192, В+, дом 18, корпус 1, да, да, да, да, да, да, Имеется, Грузовых лифтов: 3, Год постройки: 2015, улица Недорубова, 37.935522, 55.702510
Свяжитесь со мной на счет цены
10 дн.
T55S702510L37S935522T

На карте


Условия сделки

Источник


Старт продаж

Возможно заинтересует