Top.Mail.Ru

улица Недорубова, д. 11

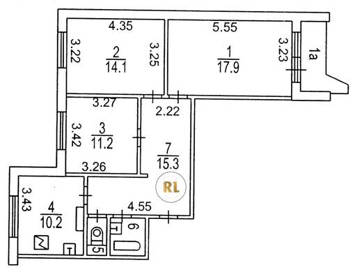
База каталог, Кол-во нежилых помещений: 3, П-44-1/17, Москва, Некрасовка, Пассажирский лифт: 3, От метро: 350, Юго-Восточный, да, Наименьшее кол-во этажей: 17, Наибольшее кол-во этажей: 17, Некрасовка, Кол-во помещений: 195, Кол-во подъездов: 3, 3-комн, Год ввода в эксплуатацию: 2016, Кол-во жилых помещений: 192, В+, дом 11, да, да, да, да, да, да, Имеется, Грузовых лифтов: 3, Год постройки: 2014, улица Недорубова, 37.933303, 55.702551
Свяжитесь со мной на счет цены
10 дн.
T55S702551L37S933303T

На карте


Условия сделки

Источник


Старт продаж

Возможно заинтересует