Top.Mail.Ru

улица Трофимова, д. 18А

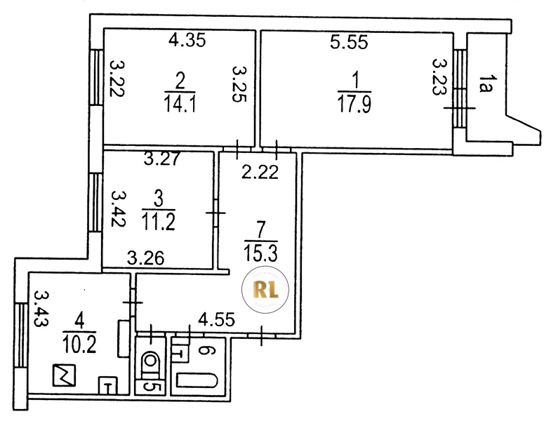
База каталог, Кол-во подъездов: 2, П-44, Москва, Южнопортовый, Площадь парковки: 0, Пассажирский лифт: 2, От метро: 880, Юго-Восточный, нет, Наименьшее кол-во этажей: 0, Наибольшее кол-во этажей: 10, Автозаводская, Кол-во помещений: 75, Кол-во нежилых помещений: 3, Год ввода в эксплуатацию: 2000, 3-комн, Кол-во жилых помещений: 72, Не присвоен, дом 18А, нет, да, да, да, да, да, Имеется, Грузовых лифтов: 2, Год постройки: 2000, улица Трофимова, 37.672765, 55.702592
Свяжитесь со мной на счет цены
10 дн.
T55S702592L37S672765T

На карте


Условия сделки

Источник


Старт продаж

Возможно заинтересует